Műszaki Tervezés – 1978. április
A dunaújvárosi fedett uszoda többcélú versenymedencéje és víztisztító – vízforgató berendezése
PÉCHY IMRE – HORVÁTH JÁNOS
A “Műszaki Tervezés” 77/3. számában röviden ismertetésre kerül az akkor még építés alatt álló fedett uszoda építészeti, szerkezeti kialakítása. E cikk keretében – a többirányú érdeklődésre való tekintettel – részleteseben ismertetnénk az időközben elkészült és üzembe helyezett uszoda újszerű kialakítású versenymedencéjét, valamint a létesítmény vízitisztító és vízforgató berendezését.
Közismert tény, hogy az uszodák mind beruházási, mind üzemeltetési szempontból a legdrágább sportlétesítmények közé tartoznak, s fenntartásuk világszerte jelentős állami támogatást igényel. Ez az oka annak, hogy az uszoda építésénél egyre általánosabb a többcélú üzemelésre, a létesítmény minél szélesebb körű kihasználására való törekvés.
Funkcionális szempontból az uszodákat három főbb csoportba sorolhatjuk, éspedig nemzetközi versenyek rendezésére alkalmas uszodák (a Nemzetközi Ússzószövetség csak 50 m-es medencében elért eredményeket hitelesít), a helyi lakosság úszó- és fürdőigényeinek kielégítésére szolgáló, valamint úszásoktatást szolgáló uszodák.
1. ábra. Medencetér belső képe
Hagyományos kialakítású uszodáknál a fenti funkcionális igényeknek megfelelően külön-külön medencék épülnek, amelyeknél a leglényegesebb különbség a medencék fenékszintjének kialakításában, ill. a különböző vízmélységekben jelentkezik.
Ha azonban egy megfelelő méretű medencében a fenékszintet részben változtatható mélységgel alakítjuk ki, úgy az előzőekben ismertetett hármas funkciót egy medencében is biztosítani lehet. Ily módon jelentős beruházási költségmegtakarításon túlmenően olyan többcélú felhasználásra alkalmas medence alakítható ki, mely gazdaságosabban üzemeltethető, hiszen elegendő csak két, vagy több medencéhez viszonyítva a vízigényt, vagy a gépészeti berendezéseket említeni, melyek a beruházási költségeken túlmenően állandó felügyeletet, karbantartást, s üzemköltséget igényelnek.
A dunaújvárosi uszoda tervezésénél jogos igényként merült fel a megbízó részéről a versenyzési lehetőségen kívül az úszni nem tudó fiatal és felnőtt korosztály fürdési lehetőségének is a biztosítása, annál is inkább, mivel a beruházáshoz szükséges pénzeszközöket a dunaújvárosi tanács, a helybeli vállalatok, az Országos Testnevelési és Sporthivatal, valamint a város közönsége biztosították.
Figyelembe véve a korlátozott beépíthető területet, valamint a többcélú igényt, olyan 50X21 m-es versenymedencét alakítottunk ki, mely egy emelhető-süllyeszthető elválasztófallal két részre osztható, éspedig egy 33 1/3 m-es, valamint egy 15,17 mX21 m-es részre, s ez utóbbinál egy közbenső emelhető-süllyeszthető padozat beépítésével a vízmélység 0,3 m-től 1,8 m között változtatható. A 33 1/3 m-es medencerész, ahol a vízmélység 1,8, edzésre, vízilabdamérkőzésre, úszásra, akár kisebb versenyek rendezésére is alkalmas, a mozgatható padozatú medencetérben, pedig a vízmélység a kívánt célnak megfelelően beállítható. A versenymedence mellett, üvegfallal leválasztott térben kisgyermekek részére egy további 8X12,5 m-es, 0,6-1,2 m mély tanmedencét is kialakítottunk, amely magasabb vízhőmérséklete miatt egyúttal sportolóknak pihenő medenceként is használható.
2. ábra. Uszodaépület hosszmetszete a versenymedencével
Változtatható fenékszintű, többcélú úszómedence hazánkban elsőként a dunaújvárosi uszodánál került megépítésre, külföldön azonban az elmúlt években felépült uszodákban igen sok helyen találkozhatunk ilyen medencekialakítással, s az üzemelési tapasztalatok rendkívül kedvezőek.
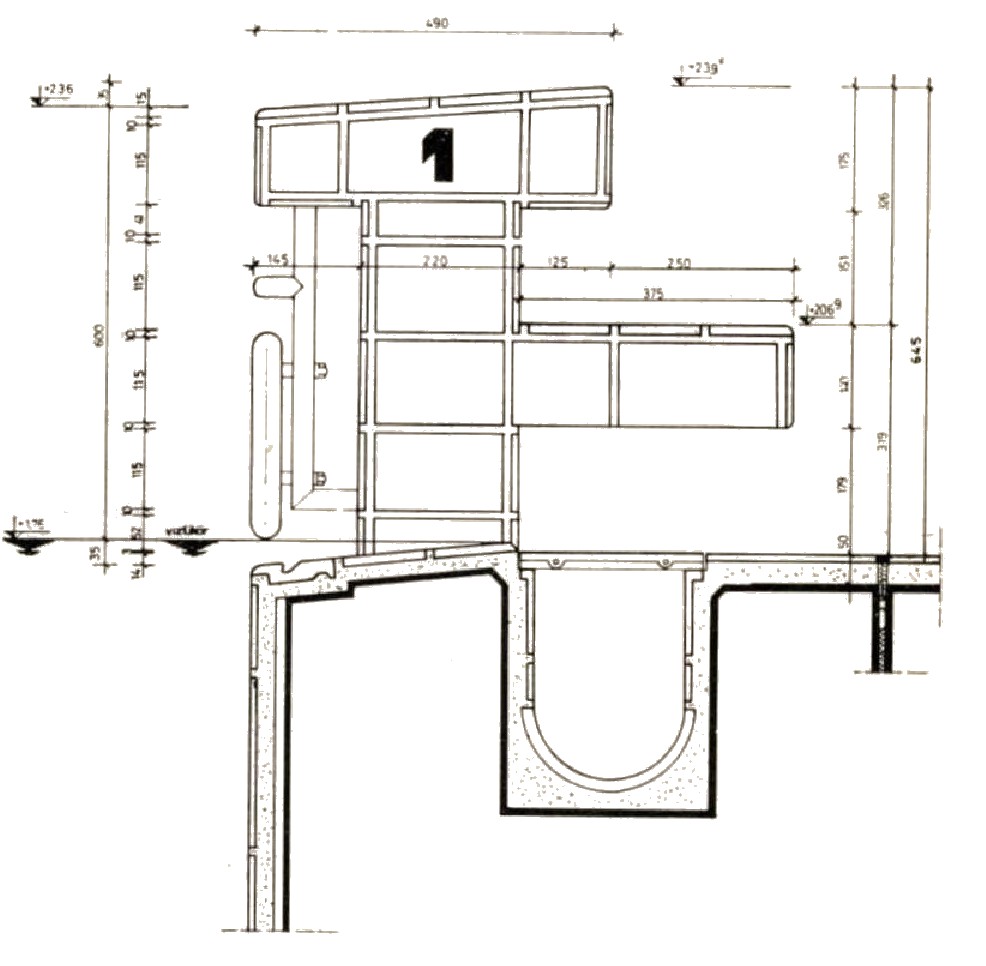
Szerkezetileg a versenymedence B 200 minőségű monolit vasbeton műtárgy, mely keresztirányú dilatáció kialakításával két részre van osztva, s a csatlakozó épületszerkezetektől is dilatáltatva van. A dilatációs hézagokba, valamint a medencefenék és oldalfal csatlakozásánál lévő munkahézagba SIKA lemez került beépítésre.
Tekintettel az építés helyén található lösztalajra, a medence alatt járható, ill. bújható teret alakítottunk ki, hogy az esetleges vízszivárgás észrevehető, ugyanakkor a medencéhez tartozó csőszerelés könnyen hozzáférhető, ellenőrizhető legyen.
Az alsó vasbeton fenéklemez alatt az esetlegesen szivárgó víz talajba jutásának megakadályozására 3 rétegű bitumenes lemezszigetelés is készült.
Hogyan működik az uszoda emelőszerkezete?
Az emelhető-süllyeszthető padozat és elválasztó fal ugyancsak monolit vasbeton szerkezetű, B 280 minőségű betonból készült, s a mozgatásuk hidraulikus rudazatok segítségével történik. Az emelő berendezést a hozzátartozó elektromos vezérlő- és jelzőberendezéssel a nyugatnémet ROBUC cég szállította. A hidraulikus berendezés az egyébként szokásos olaj helyett a gyártó cég által szállított speciális folyadékkal van működtetve, mely esetleges vízbejutás esetén vízben oldódik és egészségre nem ártalmas.
Külföldi uszodáknál általában kétféle: mechanikus, vagy hidraulikus működtetésű berendezésekkel találkozhatunk. A tervezés során alkalmunk volt több ilyen berendezést megtekinteni, s a helyszínen nyert építési és üzemelési tapasztalatok alapján választottuk a hidraulikus rendszert, mely élettartam, kezelés és építési vonatkozásban a mechanikus rendszereknél lényegesen kedvezőbb.
Az 1,50 m széles elválasztó falat 2 db hidraulikus rudazat mozgatja, mely emelt helyzetben 30 cm-rel a medence vízszintje fölött helyezkedik el, s így a 33 1/3 m-es medencerészben a kiemelt fal függőleges felülete beütő felületként használható.
3. ábra. A medence elválasztó fal kiemelt helyzetben
Amíg az elválasztó fal két kiemelt és lesüllyesztett helyzetben tartható, addig a négy hidraulikus rudazaton felfekvő fenékszerkezet az úszómesteri szobában elhelyezett kezelőpultról elektromos vezérléssel több magasságba állítható.
A beállított vízmélységet az úszómesteri szoba ablaka fölött elhelyezett, kivilágított mélységjelző szám mutatja. Az esetleges balesetek elkerülése céljából szigorú előírás, hogy emelés, ill. süllyesztés ideje alatt – ez néhány percet vesz csak igénybe – e medencetérben tartózkodni tilos. A medence hosszfalában 3-3 betekintő ablak került elhelyezésre. Ezek televíziós közvetítéseknél rendkívül hatásos felvételek készítését teszik lehetővé, az elválasztó fialnál és mozgatható padozatnál pedig a rudazatok ellenőrizhetőségét, ill. a medence fenékén esetlegesen jelentkező szennyeződés megfigyelhetőségét biztosítják.
4. ábra. Belső tér részlete a vízmélység jelző számokkal
A medence emelt vízszinttel, ún. “feszített víztükrű” peremi kialakítással készült. A hagyományos medencéknél a víztükör a medencefal felső szintje alatt 25-30 cm-rel mélyebben helyezkedik el. A peremkialakítás számos hátránya miatt korszerű uszodáknál ma már mindenütt a vízszint maximális megemelésére törekednek, ahol a víztükör a medencét körüljáró felülettel azonos, vagy közel azonos szinten van. Mivel a túlfolyó vizet a körüljáró padlófelületen kialakított folyókába elvezetjük, a vízfelületen a partra futó hullámok nem verődnek vissza az oldalfalról és így a hullámkeltés megszűnése után már néhány másodperccel a vízfelszín ismét tükörsima lesz.
E perem kialakításnak többfajta szerkezeti megoldása lehetséges. Külföldi uszodáknál szerzett tapasztalatok alapján a dunaújvárosi uszodában az ún. Bad-Pyremont-i (a nyugatnémetországi Bad-Pyremontban épült uszodáról elnevezett) peremi kialakítást választották (6. ábra).
A túlfolyó vályúk műanyag ráccsal vannak lefedve, melyek 3,0 m hosszú, könnyen kiemelhető elemekből állnak.
A medence, valamint a körüljáró felületek kerámia burkolatát a nyugatnémet BUCHTAL cég szállította. A hosszfalakban elhelyezet 2-2 lejáró lépcső ugyancsak BUCHTAL kerámiaelemekkel került kialakításra, krómozott KO acél kézfogókkal.
A versenymedence 33 1/3 m hosszú, fix padozatú része vízilabdamérkőzések lebonyolítására is alkalmas. Az úszókapu kötélrögzítő szerelvényei az oldalfalban kerültek beépítésre a medence úszópálya elválasztó kötelek rögzítőelemeihez hasonlóan.
5. ábra. Startkövek beütőlapokkal
A medence betonozását swing szivattyúval a 26. sz. Állami Építőipari Vállalat, a burkoló munkát az Országos Szakipari Vállalat végezte. Az elválasztó falat felemelt helyzetben, a mozgatható padozatot pedig alsó helyzetben zsaluzták, ill. betonozták be. A vasbeton szerkezet elkészülte után végzett vízzárósági próba kedvező eredménye lehetővé tette, hogy az eredetileg tervezett 3 rétegű vízzáró vakolatot el lehetett hagyni, csupán néhány helyen került sor Wandex (dán, vízzárást fokozó anyag) felhordására. A méretek igen pontos betartásának biztosítására az építés alatt az FTV geodéziai csoportja folyamatosan ellenőrző méréseket végzett, a hidraulikus berendezések elhelyezése és beemelése a szállító cég szakembereinek irányításával történt.
A kivitelezési munkákra már a beruházási programmal egyidőben a Dunai Vasműben számítógéppel hálóterv készült, mely a fedett uszoda teljes kivitelezésének átfutási idejét 25 hónapban határozta meg. Az első háló az összefüggéseket csak nagy vonalakban tartalmazta, az előrehaladás üteme szerint készültek el az egyes részhálók, amelyek az igényeknek megfelelő részletességgel, nem egyszer egészen aprólékosan határozták meg a szükséges intézkedéseiket.
A kivitelezésnek ilyen pontos ütemezése a kivitelező vállalatok igen szoros együttműködését tette szükségessé, s ennek példamutató végrehajtását a létesítmény határidőre történt átadása bizonyítja legjobban.
A dunaújvárosi fedettuszoda tervezésének idején, azaz 1975. év közepén még nem állt rendelkezésünkre az uszoda vízforgató berendezésre vonatkozó – a 26/1966. EüM-OVF együttes utasításán kívül – olyan részletes – a további tervezéseket nagymértékben elősegítő – és konkrét értékeket tartalmazó előírás vagy segédlet, mint az időközben kiadott OVHMI 204-75. számú műszaki irányelv. Közismert, hogy a fürdőmedencék vizének folyamatos és intenzív kezelése nélkül a kívánatos, ill. előírt vízminőség tartósan – a medencében egyidejűleg tartózkodók létszámától és az időjárási behatásoktól függetlenül – nem biztosítható, ez csak a medence vizének állandó forgatásával és a szükséges vegyszeres közlésekkel oldható meg. A töltő-ürítő és közben frissvíz utánpótlásos, ill. a vízforgatásos rendszer előnyeit és hátrányait szükségtelen részletezni. Meggyőződésünk, hogy a jövőben hazánkban is egyre több olyan medence létesül, melynek vízkezelését a korszerű és szakszerűen tervezett vízforgatással oldják meg. Lényegében az ez irányú, igen határozott törekvést tapasztaljuk mi tervezők, hiszen a megrendelők szinte kivétel nélkül igénylik a víztisztítás és forgatás alkalmazását nemcsak az új, de a rekonstrukció alá kerülő medencéknél is.
6. ábra. Medenceperem kialakítása startkővel
A dunaújvárosi uszodánál a meglévő 50X20 m-es szabadtéri, valamint az új fedett uszodában levő 50X21 m-es úszó- és a 8X12,5 m-es tanmedence vízkezelését vízforgatással terveztük. A vízforgató berendezés gépháza a meglévő lelátó alatti térben lett kialakítva közös gépházként, így az azonos funkciókat ellátó berendezések a medencék két forgatókörét kiszolgálják. Az elrendezés igen gazdaságos módon volt megvalósítható, az üzemeltetési feltételek kedvezőek. A fedett uszoda megépítésével egyidejűleg elkészült a szabadtéri és fedett medencékhez tartozó teljes technológiai gépészet, kivéve a szabadtéri medence rekonstrukcióját. A fedett uszodát 1977-ben – hazánk felszabadításának ünnepén – üzembe helyezték, azóta kifogástalanul, üzemel, a dunaújvárosi lakosság részéről nagy közkedveltséggel bír, nagyon jól érvényesülnek a többcélú felhasználási törekvések, a fürdési, oktatási és sportolási lehetőségeket jó összhangban kihasználják.
A vízforgató- és kezelő berendezés tervezésénél elhatározott szándékunk volt, hogy az importot a legszükségesebb mértékig csökkentsük. Csakis olyan igények kielégítéséhez tartottuk szükségesnek az importot, melyekhez a hazai ipari háttér nem volt biztosítva. A komplett vízforgató berendezés importálása – a tervezett rendkívül rövid átfutású megvalósítási ütemezést figyelembe véve – igen kézenfekvőnek tűnt, hiszen ez időben rendkívül megszaporodott azoknak az uszodáknak a száma, melyekhez teljes berendezéseket importáltak. A több évtizedes, ipari és ivóvíztisztítási tervezési gyakorlatunkat, az elért eredményeinket az uszodavíztisztítási technológiák tervezésénél jól hasznosíthattuk. Vízminőségeinket a komplett víztisztító- és forgató berendezéseket szállító külföldi cégeknél jobban ismerve, arra alapozva e feladatra vállalkozhattunk. A hazai ipar felkészültségét ismerve biztosan feltételeztük, hogy a vízforgató berendezés igen fontos részét képező gyorsszűrő készüléket és a hozzátartozó szűrőanyagot – a víztisztításban jól bevált szerkezeti megoldáshoz hasonlóan, természetesen mérlegelve a fürdővízkezelési szempontokat – import nélkül biztosítani tudjuk. A vízkezelő és- forgató berendezés ismertetése előtt hangsúlyozzuk, hogy az üzembe helyezett uszodánál elért eredmények igazolták a tervezői elképzeléseket. A Fejér megyei KÖJÁL és a saját vízvizsgálati mérési eredmények igen kedvezőek és a kifogástalan minőségű uszodavíz megfelel a 26/1966. EüM-OVF rendeletben és az OVHMI 204-75 műszaki irányelvekben előírt bakteriológiai, kémiai és fizikai, valamint az általános minőségi követelményeknek. Pédaként említjük, hogy pl. a forgatott vízben, de a medence vizében is minden esetben kevesebb az oxigénfogyasztás, mint a városi ivóvízhálózatból származó pótvízben. Külön szeretnénk hangsúlyozni, hogy a dunaújvárosi uszodánál elért igen figyelemre méltó eredmények elérésében nagyon fontos tényező, hogy a berendezés üzemeltetését rendkívül szakszerűen – a víztisztítási technológiát és az esetenként alkalmazható kezeléstechnikai fogásokat kiválóan ismerő szakemberek – végzik. Mintaszerű az információszerzés, az üzemi tapasztalatok átadása az uszoda vezetősége és tervezőink között, mely a további tervezéseinket nagymértékben pozitívan elősegíti.
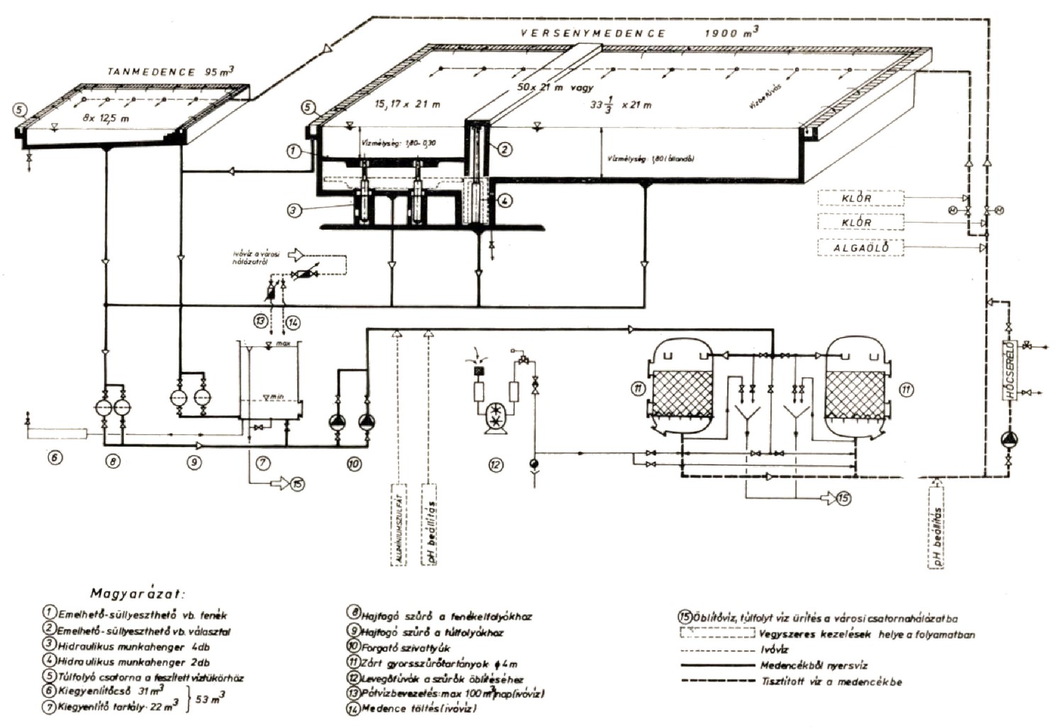
A fedett uszodában lévő sport- és tanmedencékhez tartozó vízforgató berendezés max. teljesítménye 800 m3/ó, mely lehetővé teszi, hogy 3-6 óránként, a tanmedencéjét pedig 1-2 óra alatt a tisztítóberendezésen átvezesse. A sportmedencében 0,37 fő/hm2 fajlagos terhelést figyelembe véve, a fürdőzők óránkénti közepes létszáma a medencében 400 fő. A forgatóberendezés elvi működési vázlatát – természetesen egyszerűsített formában, a vegyszeradagoló körök és a műszerezés részletezése nélkül – a 8. ábra szemlélteti. A medencéknél alkalmazott “feszített víztükör” az előzőekben ismertetett előnyökön túlmenően a medencében levő, ill. forgatott víz áramlási viszonyait döntő módon kedvezően befolyásolja. A víz állandó tisztaságának biztosítását egyenletes hőmérsékleten tartását, a vízfelszín állandó tisztántartását és azt a célt, hogy a medence minden részébe egyenletesen és minél gyorsabban eljusson a fertőtlenítőszer, a klór, csak akkor lehet elérni, ha a forgatott vízzel a medence egyenletesen, holt terek kialakulása nélkül, folyamatosan átöblítődik. Ezt a feltételt a víz helyesen tervezett be- és elvezetésével lehet kielégíteni. Mindkét medence teljes kerületén kialakított peremen keresztül túlfolyik, a másik fele pedig a medencefenéken levő elszívófejeken át kerül a forgatóberendezésbe, majd megtisztulva a pótvízzel együtt a medence hosszirányú oldalfalában levő befúvó fejeken át van megfelelő sebességgel visszaveztve a medencébe.. A szemközti befúvófejek eltolt helyzete, a túlfolyóperem és a fenékelszívók helyesen méretezett elrendezése a medencében a szükséges mértékű áramlásokat létrehozzák. A sportmedencénél az emelhető válaszfal és fenék alkalmazása miatt az ezek alatti “holt” vízterek átöblítését is biztosítani kellett, ezért az elszívó és befúvófejek megfelelő kiosztására e helyeiken is feltétlenül szükség volt.
A medencéből elfolyt víz először uszadékforgón vezetődik keresztül, mely a durva uszadékot (hajszálat, gomb stb.) kiszűri. A túlfolyóélen keresztül elfolyt víz a kiegyenlítő tartályba ömlik gravitációsan. A rendelkezésre álló szűk hely miatt a kiegyenlítő tartály térfogatát a gravitációs cső egy részének felbővítésével lehetett csak megvalósítani. A kiegyenlítő tároló hármas feladatot lát el. Befogadja a medencében tartózkodó fürdőzők által kiszorított, a fürdőzők által keltett hullámokkal eltávozó, valamint biztosítja a szűrő öbítéséhez szükséges vízmennyiséget, így öblítéskor is állandó marad a medence vízszintje. A forgató szivattyúk részben a kiegyenlítő tartályból, részben pedig a medencefenékről közvetlenül szívnak. A forgatás intenzitását a forgatószivattyúk párhuzamos üzemeltetésével vagy a kettős tekercselésű motorok fordulatszám változásával lehet szabályozni.
A forgatószivattyúk a zárt rendszerű gyorsszűrőkön keresztül táplálják a vizet vissza a medencébe. A forgatókörökhöz 2 db 4 m átmérőjű szűrőtartány tartozik, a szűrési sebesség max. 32 m/ó. A szűrőanyag hazai, osztáyozott 1-2 mm szemcseméretű kvarchomok. A szűrőikbe beépített szűrőfejek MÉLYÉPTERV-PEMŰ típusúak. A szűrők időnkénti ellenáramú öblítését vízzel maguk a forgatószivattyúk, a légöblítést pedig olajmentes levegőt szállító – Roots-rendszerű – fúró végzi. A vízöblítés intenzitása kb. 15 m3/óm2, a légöblítésé 68 m3/óm2.
8. ábra. Technológiai folyamatábra
Szűrés előtt a forgatott vízhez folyamatosan koaguláló pelyhesítő szerként 10%-os alumíniumszulfát oldatot adagolunk, ezzel a kolloid szennyeződés egy része is szűrhetővé válik, mely a durvább lebegő szennyeződésekkel együtt a homokszűrőn kiszűrődik.
Szűrés után oxidáló fertőtlenítő vegyszerként klóradagolást terveztünk. A víz pH értékét a pótvíz mennyiségének szabályozásával vagy lúg (Nátriumikarbonát), ill. sav (sósav) adagolással lehet a kívánt értéken tartani. Az eddigi üzem során sav adagolásra nem volt szükség. E cikk írásával egyidőben a 6 hónapos üzem után – teljesen kifogástalan vízminőségi állapotok mellett – a berendezések ellenőrzése céljából leürítették a medencéket. Megállapítható, hogy az egyébként ötvözetlen acélból készült csőrendszerek állaga igen jó, a belső védőréteg jól kialakult, felesleges költség lett volna a más vízminőséggel üzemelő külföldi uszodáknál szokásos korrózióálló csőanyag beépítése. (Kivéve a betonozott csőszakaszokat, elemeket.)
Az algák elszaporodása elleni védekezésül 5-10%-os koncentrációjú rézszulfát oldat időnkénti adagolását irányozták elő tervezéskor. Az emelhető fenék- és válaszfal hidraulikus munkahengerei védelme érdekében a szállító ROBAC-cég azonban nem járult hozzá e vegyszer alkalmazásához, ezért nem is adagolták. Az ajánlott algaölő vegyszer (pl. Desalgin) hazai engedélyeztetése, ill. importjára még nem került sor. Az eddigi üzem során algásodás nem fordult elő, mivel az üzemeltetők az úszómedencében a kifogástalan vízminőséget folyamatosan fenntartják.
A vegyszerek adagolását az osztrák Bran és Lübbe gyártmányú dugattyús adagolószivattyúk végzik, melyek az adagolótartállyal teljesen készre szerelt blokként kerültek leszállításra. Mindkét vízforgató kört kiszolgálják, üzembeállításuk óta kifogástalanul üzemelnek, szabályozásuk kézi lökethossz-változtatással. A klórozó berendezéseket az osztrák Fischer és Porter cég szállította komplett. E cég által kifejlesztett ún. 3C-jelű koncepciót alkalmaztuk az elrendezés tekintetében. A korszerű, teljesen vákuumos rendszerű berendezés az üzembehelyezés óta kifogástalanul üzemel. Az adagolást a diszpécser fülkében levő rotaméter csöveken lehet beállítani, ugyanitt folyamatosan ellenőrizhető a vízben előre beállított min.-max. Cl2/l érték elérésekor fényjelzést ad. Külön megemlítjük, hogy a diszpécser terem elhelyezése igen praktikusnak bizonyult. Az irányító személyzetnek állandó rálátása van a medencékre, sőt még a szabadtéri medencére is. A technológiai gépészeti berendezések szerelvényeinél – pénzügyi nehézségek miatt – csak minimális motorizálásra volt lehetőség, de tervbe van véve a motoros hajtóművek beépítése, mely nagymértékben elősegíti majd a kezelési műveletek végrehajtását, ill. lehetővé válik e diszpécserhelyiségből a távműködtetés.
A pótvizet a városi ivóvízhálózatból közvetlenül a kiegyenlítő tartályba folyamatosan vezetik be. Az egészségügyi szempontból megkívánt vízminőséget az eredetileg tervezett 105 m3/nap mennyiségnél kevesebb pótvízzel biztonsággal fent lehet tartani. A pótvíz mennyiségének meghatározásánál azonban a forgatott víz korróziós tulajdonságait is figyelembe kell venni, ezért a minőségi szempontból elegendő 30-503 napi pótvízzel szemben – némi biztonságot is figyelembe véve – mintegy 150 m3 vizet kell naponta a városi vízhálózatból beadagolni a kb. 2100 m3-es vízrendszerbe. Ezzel a pótvízmennyiséggel megakadályozható a víztisztító berendezéssel el nem távolítható szennyező anyagok bedúsulása is. A pótvíz mennyiségének megfelelő vízmennység pótolja a párolgási veszteséget, és egy részét a szűrők visszaöblítésére használják. A fölösleg a kiegyenlítő tartály túlfolyóján automatikusan eltávozik.
9. ábra. Szűrőgépház belső tere a tartályokkal
A medence burkolt fenékfelületének időnkénti tisztítására a nyugatnémet Ospa-cég által szállított szivattyús tisztítóberendezést alkalmazták. A tisztítóberendezés a medence leürítése nélkül, víz alatt üzemeltetve tisztítja a feneket. A berendezés szivattyúja a vízzel együtt felszívja a fenéken levő üledéket és benyomja a szűrőzsákjába, ahol a szennyeződés kiszűrődik. Ezzel a szerkezettel vízveszteség nélkül lehet a tisztítást elvégezni. A víztisztító- és forgató berendezésnél a beépített műszerek folyamatosan tájékoztatást adnak a felhasznált pótvíz mennyiségéről, a kiegyenlítő tartály vízállásáról, a maradék klórtartalomról, a pH és redoxpotenciál értékről, valamint a medencékben levő víz hőmérsékletéről.
A jövőben még jobban törekedni kell az import még nagyobb mértékű csökkentésére. A vízkezelő berendezésekhez minden esetben szükséges klórozó készülékeknél igen kedvező fordulat következett be időközben, mert a DmRVVV Ft-ért kapható, korszerű vákuumos készülékeket forgalmaz, szervizelést és tartalékalkatrész utánpótlást vállal. Az uszoda víz-, ivó- és iparivíz-tisztításban, de az egész vegyipar területén is rendkívül nagy az igény a dugattyús vegyszeradagolók iránt, ezeket importálni kell, a gyakorlatunk szerint a piaci helyzetnek megfelően rendszerint más és más cégek termékeiből. Ezek szervizére nincs vállalkozó, a tartalék alkatrészellátás igen nehézkes. Egyre inkább időszerű lenne, ha az adagolószivattyúk területén is a klórozó berendezésekhez hasonló változás következne be.
A vízkezelő-forgató berendezést illetően összefoglalásként megállapíthatjuk, hogy a dunaújvárosi uszodánál megvalósított berendezés minden vonatkozásban sikeresnek minősíthető. Nyugodtan állíthatjuk, hogy nincsenek megoldatlan, vagy megoldhatatlan uszodavíztechnológia problémáink. Nyomatékosan hangsúlyozzuk azonban azt, hogy – a felhasználásra kerülő víz minőségétől függően – minden esetben külön vizsgálni kell az alkalmazható tisztítás technológiáját.
Nyomatékosan hangsúlyozzuk azonban, hogy a legjobban megtervezett és tökéletesen kivitelezett vízforgató berendezés sem ad megfelelő eredményt szakszerű és színvonalas üzemeltetés nélkül. A dunaújvárosi uszoda ebből a szempontból példaképül állítható az üzemelő és a jövőben készülő uszodák elé. Az elért siker és a tartós jó eredmény a tervezők, a kivitelező és a beruházó jó munkája mellett legalább olyan mértékben köszönhető a színvonalas üzemeltetésnek és szigorú technológiai fegyelemnek. A cikk szerzői ezúton is köszönetet mondanak a partnereknek a harmonikus és eredményes együttműködésért.
Dunaújvárosi fedett uszoda versenymedencéje
fotó: Vue Touristique – Utazási Világmagazin
A dunaújvárosi fedett uszoda többcélú versenymedencéje
Összefoglalás
Napjainkban a kulturált fürdési, sportolási lehetőség biztosítása már nem jelent luxusszolgáltatást, ugyanakkor e létesítmények felépítése, fenntartása jelentős állami támogatást igényel. A dunaújvárosi uszoda üzemeltetésénél nyert eddigi tapasztalatok is azt bizonyítják, hogy a korszerűen kialakított, többcélú úszómedence gazdaságosabb üzemeltetést tesz lehetővé, biztosítja a sportolók és fürdőzők egyidőben történő használatát.
Feltétlenül kívánatos, hogy a hazai uszodaépítési programban megépülő fürdőlétesítményeknél korszerű szerkezetek és berendezések betervezésével az uszodák minél szélesebb körű felhasználását lehessen biztosítani, minél több korosztály számára lehetővé váljék a rendszeres úszás, testedzés.
Remélhetőleg ehhez a dunaújvárosi uszoda is jó példával – mint hazánkban első többcélú medencével kialakított uszoda – hozzájárul.
A bejegyzés az Arcanum Digitális Tudománytár segítségével készült.

















